Vivienda Porto Mougás
VIVIENDA UNIFAMILIAR AISLADA
Situación: Mougás Porto (Oia, Pontevedra)
Fecha: 2009
Arquitecto: Severo Fernández Castro
Colaboradores: Ana García Boutureira (arquitecta)
Cliente: particular
A los pies de la Serra da Grova, en el Concello de Oia, se sitúa una extensa planicie, antaño agra del núcleo originario de Mougás, y que el desarrollo urbanístico incontrolado ha convertido en un territorio invadido por construcciones dispersas y de escaso interés.
En el interior de este esparcimiento se sitúa nuestro encargo. Los fondos de escenario que nos rodean son los montes de Mougás al norte, este y oeste y un horizonte de costa Atlántica hacia el oeste.
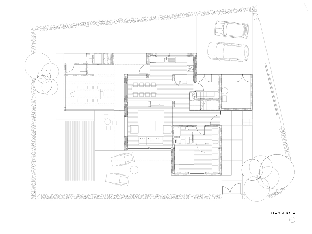
Se trata de una vivienda unifamiliar, con un programa de necesidades complejo.
El proceso proyectual se plantea partiendo de unos volúmenes sencillos, en cuanto a su lenguaje formal, que se irán uniendo y relacionando dando respuesta a la dificultad del programa. De ello resultará un volumen final complejo, con cubiertas a distintas alturas y pendientes, fachadas desiguales y discontinuas, unido todo ello por una proporción y coherencia espacial.
En planta baja se diferenciarán los distintos usos, casi sin divisiones; las distintas alturas y cotas distribuirán los espacios de salones, cocina y accesos. En la planta superior se distribuyen dos dormitorios y dos baños. Todos los huecos de fachada buscan enmarcar las vistas de la montaña que rodea el proyecto, y una coherente relación con la parcela, piscina y cenador exterior.
En resultado final cobra protagonismo el material; se generan pavimentos de hormigón de distintas texturas y un zócalo de hormigón gris, sobre el que se elevan los volúmenes blancos con acabados y estucos de cal.













